REQUEST A TOUR If you would like to see this home without being there in person, select the "Virtual Tour" option and your agent will contact you to discuss available opportunities.
In-PersonVirtual Tour

$ 270,000
Est. payment /mo
New
270 Furnace Dock RD Cortlandt Manor, NY 10567
1.07 Acres Lot
UPDATED:
Key Details
Property Type Vacant Land
Listing Status Active
Purchase Type For Sale
MLS Listing ID 929669
Rental Info No
Annual Tax Amount $1,628
Lot Size 1.067 Acres
Acres 1.067
Source onekey2
Property Description
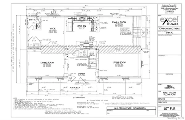
Build-ready residential lot with lake rights now available in Cortlandt Manor, including an adjacent parcel with deeded access to Pine Lake. This vacant property comes with prior Board of Health approval, verified engineering, and full architectural documentation for a 3,242 square foot Champion “Deer Park” modular home, offering a rare turnkey opportunity for builders, developers, or end-users. Utilities include public water and private septic, and the lot is situated in a desirable residential district. With approvals and plans in place, this parcel is fully prepared for immediate development, and current market conditions suggest an end-home resale value of approximately $975,000.
Location
State NY
County Westchester County
Interior
Fireplace No
Exterior
Waterfront Description Lake Front,Lake Privileges
Building
Sewer Septic Needed
Schools
Elementary Schools Furnace Woods Elementary School
Middle Schools Blue Mountain Middle School
High Schools Hendrick Hudson
School District Hendrick Hudson
Others
Senior Community No
Special Listing Condition None
Listed by Houlihan Lawrence Inc. • Kenneth Lefkowitz






